项目地点:中国,湖北省,武汉市
是否站内:否
项目类型:市政设计
专业类型:多专业
建筑面积:500㎡以内
设计工期:30天
项目说明:
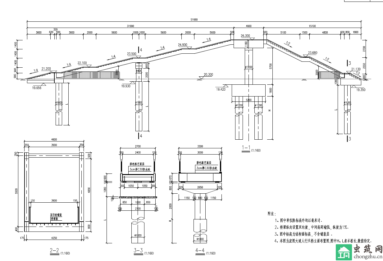
人行天桥主桥计算跨径为55.44m,宽4.6m;主桥两端各设置一个梯道和坡道。梯道1 长15.1m,
坡道1 长31.6m;梯道2 长15.1m,坡道2 长31.6m。梯道宽2.7m,坡道宽3.3m。
(1)桥面宽度:
主桥桥面宽4.6m,净宽3.6m;坡道宽3.3m,净宽3.0m;梯道宽2.7m,净宽2.4m;
(2)梯道纵坡:1:2;坡道纵坡:1:4;
由于空间受限,坡道无法按《无障碍设计规范》中的坡度1:12 布置,考虑到自行车推行的原
因,按1:4 设计;另外由于桥位处300 米以内设有人行过街斑马线,故本工程未考虑无障碍需求。
(3)桥下净空:机动车道(不含辅道)>5.0m;
(4)桥梁结构设计基准期:100 年;
(5)桥梁设计使用年限:100 年;
(6)桥梁设计安全等级:一级,结构重要性系数为1.1;
(7)人群荷载:按《城市人行天桥与人行地道技术规范》(CJJ 69-95)取值;
(8)抗震设防标准:地震基本烈度6 度,地震动峰值加速度0.05g,抗震设防类别为丁类,抗
震设计方法类别为C 类,按6 度区相关构造和抗震措施的要求进行设计;
(9)天桥上部结构竖向自振频率不小于3Hz;
(10)桥面防水等级:Ⅱ级;
(11)环境类别:Ⅱ类。
人行天桥主桥计算跨径为55.44m,宽4.6m;主桥两端各设置一个梯道和坡道。梯道1 长15.1m,
坡道1 长31.6m;梯道2 长15.1m,坡道2 长31.6m。梯道宽2.7m,坡道宽3.3m。
(1)主梁为简支拱形钢桁梁,计算跨径为55.44m,桁高5.5m,结构总宽4.6m,竖曲线为圆
曲线,半径为800m。上、下弦杆均采用箱型截面,拱形上弦杆截面尺寸为350x500mm,顶板板
厚20mm,底板板厚16mm,腹板板厚20mm;下弦杆截面尺寸为350x800mm,顶板板厚16mm,底
板板厚16mm,腹板板厚20mm。腹杆采用箱型截面,截面尺寸350x350mm,顶底板板厚12mm,腹
板板厚12mm。桥面采用倒T 形横梁+桥面板结构。两片主桁上弦杆之间采用直径299mm 横撑连
接。
(2)主桥人行道采用正交异性钢桥面板,现场焊接于两片主桁下弦间。
(3)主桥两端均支承于平台上,支座采用GYZ ∅300×55 板式橡胶支座。




