(发布方:YY2**)
(项目编号:zb20192167)
| 项目名称 | 5层自建房结构施工图 | 项目类型 | 自建房设计 |
| 接单要求 | 设计师 | 职称/资质 | 初级工程师 |
| 专业要求 | 结构设计 | 优选地区 | 无要求 |
| 费用 | 议价 | 完工日期 | 3天 |
| 擅长类型 | 自建房设计 | 意向定金 | 200元 (未托管) |
| 项目描述 |
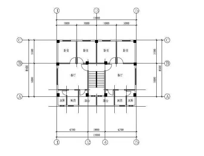
一、项目介绍:农村自建房设计,已完成平面布置图,设计五层,每层平面一样详见附件,尺寸12X8.5米,需要设计结构施工图,具体要求电话或者微信沟通,优先考虑上传类似案例及签约设计师、设计机构工作室沟通合作。 二、设计范围:结构施工图 三、设计要求:明确设计范围,在设计工期范围内认真完成全部设计内容,保障设计质量及平台图审验收通过 四、付款方式:通过虫筑网安全交易,托管资金至平台,图纸完成提交确认,没有问题确认付款支付托管费用 |
||
